Apartment Prague Hloubetin
Projects

Apartment Prague Hloubetin

2015

Interior design

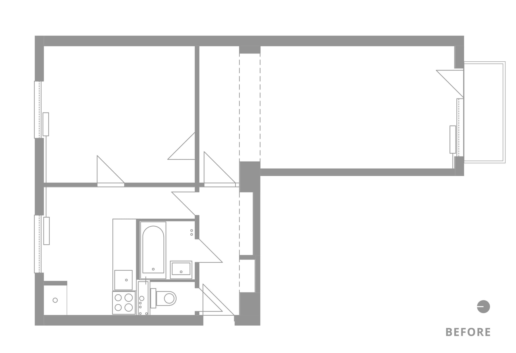
A heart project — our first home, done with complete creative freedom. The challenge was 52m² that had to feel generous. Every decision served that goal: practical layout, storage built into the walls, and a spatial logic that makes the apartment breathe. A proof that small can be exactly enough.

1 / 26